Ищете стильное, современное пространство под магазин, шоурум, салон или офис?В Sydney City - новом бизнес-центре класса «А» в сердце Большого Сити - открылся набор площадей...
Ищете стильное, современное пространство под магазин, шоурум, салон или офис?В Sydney City - новом бизнес-центре класса «А» в сердце Большого Сити - открылся набор площадей...
Ищете стильное, современное пространство под магазин, шоурум, салон или офис?В Sydney City - новом бизнес-центре класса «А» в сердце Большого Сити - открылся набор площадей...
Ищете стильное, современное пространство под магазин, шоурум, салон или офис?В Sydney City - новом бизнес-центре класса «А» в сердце Большого Сити - открылся набор площадей...
Сдается в аренду торговое помещение в Жилом комплексе «Сидней Сити», Москва, ул. Шеногина, вл. 2Сдача - 4 кв. 2024г,, Ключи - 1 кв. 2025г. Проект премиум-класса на Шелепихинской...
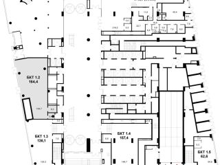
Помещения свободного назначения от 62,6 м в бизнес-центре Sydney City (класс " А") - премиум-локация на Шелепихинской набережнойИщете стильное, современное пространство...
Сдается в аренду ресторан 550,4 м в бизнес-центре класса «А» Sydney City - центр Большого Сити! Ищете уникальное пространство для ресторана в самом сердце деловой жизни Москвы? У...















