Продам кирпичный дом подключена канализация своя скважина

Новое
Добавить заметку
  • Пожаловаться
  • Номер 49349199
  • Сделка Продам
  • Объект Дом
  • Адрес
    • Владимирская область,
    • Киржач,
    • Д Ивашево Центральная,
    • 37
  • Тип дома Кирпичный
  • Этаж - / 1
  • Площадь земельного участка 30 сот
  • Площадь объекта 95 м²
  • Телекоммуникации Выделенные линии интернет
  • Цена без комиссии
  • Продается добротный и теплый кирпичный дом в спокойной, но живой деревне.
    До г. Киржач - 15 минут на автобусе. Вокруг прекрасная природа, лес и река недалеко.
    Соседи живут постоянно, зимой снег регулярно чистят техникой.
    Назначение земли - ИЖС, в доме никто не прописан.
    Свободная продажа.
    Характеристики предложения:
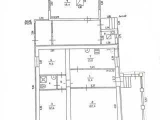
    Основной дом - кирпич, общая площадь 95 кв.м.
    Кухня - 13 кв.м (есть погреб для хранения заготовок), гостиная - 22,5 кв.м, две жилые комнаты - 12,6 и 10 кв.м, санузел с душевой кабиной.
    Отопление - магистральный газ, водоснабжение - своя скважина, канализация - септик. Кондиционирование. Кабельный интернет. Онлайн камеры наблюдения.
    Есть летняя жилая пристройка к основному дому с печкой, возможно обустроить второй этаж (есть, но не используется).
    Так же на участке - большая летняя закрытая беседка, баня - в основе сруб 2.5х4, хозпостройки, большой кирпичный гараж.
    Земельный участок прямоугольный, общая площадь 30 соток.
    Грядки, плодовые деревья.
    Простая продажа, без альтернатив и обременений.
    Агентам - вознаграждение.
    Посещение дома - по предварительной договоренности.
  • Пользователь Агентство
  • Имя Алексей
  • Телефон
    • +7 930 XXXXXXX
  • Обратная связь Отправить сообщение
  • Просмотров 12
  • Дата публикации
  • Дата обновления 27 Апрель 2026