Собственник сдаёт в аренду помещения свободного назначения – от 20 до 500 м2.На территории производственной базы располагаются 2 административных здания 3-х и 4-х этажные, со...
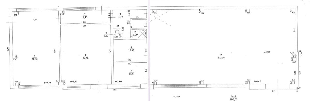
Производственно-складские площади в аренду под склад, производство, любое коммерческое использование от 500 до 4 850 м2.Объект расположен в черте города Ульяновск, проезд...
В аренду производственные и складские площади от 500 до 10 000 м2.Производственные корпуса на огороженной, охраняемой территории производственно-складской базы. Аренда возможна...













