Продаю кирпичный коттедж 167.2 м2. Площадь участка 6 соток. Расположение: село Коларово. Двухэтажный дом, без ремонта. В доме 3...
В связи с переездом продам дом в Тимирязево, газ подключен, отопление и горячее водоснабжение бойлер косвенного нагрева 150 литров. Тёплый водяной пол, пятикамерные окна VНS...
Продам коттедж в Ленинском районе по адресу ул. Дальне-Ключевская, 24 общей площадью 160 м2, состоящий из 8 комнат ,участок 6 соток, беседка.Отопление котлами на твердом топливе и...
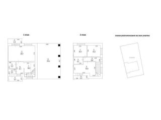
Продам дом с гаражом с террасой. Площадь участка 1146 м2 Площадь здания 161 м2 Материал стен - газобетон Сибит 400 мм. Высота кладки этажей - 3 метра. Второй этаж не мансардный...
Продам дом из бруса. 2014 год постройки. Находится в посёлке Росинка, 2 этажа, на участке есть все насаждения. В доме 4 комнаты, сан.узел, современный ремонт по дизайнерскому...






