Сдаётся помещение от собственника в торговом центре на улице Чехова 230 возле кафе причал. В здании находится магазин Магнит, банкомат, большой магазин упаковки и магазин товаров...
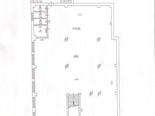
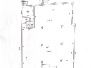
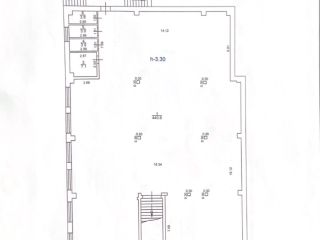
Сдам в аренду помещение в торговом комплексе площадью 456.6 м2, в прямую аренду, на срок от одного года, с возможностью арендных каникул. Минимальный срок аренды 11 мес. Помещение...









