Продается дом подключена канализация

Новое
Добавить заметку
  • Пожаловаться
  • Номер 49348921
  • Сделка Продам
  • Объект Дом
  • Адрес
    • Московская область,
    • Раменское,
    • Село Никоновское Орловка,
    • 43
  • Этаж - / 4
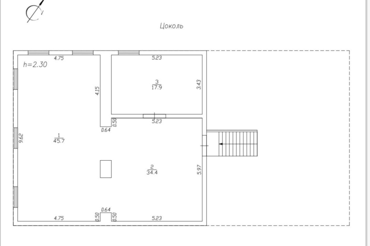
  • Площадь земельного участка 15 сот
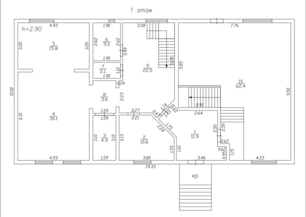
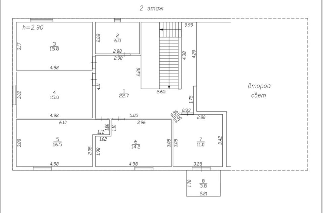
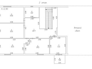
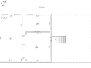
  • Площадь объекта 426.9 м²
  • Цена без комиссии
  • Предлагаем Вашему вниманию просторный дом без отделки, расположенный на участке 15 сотокв с. Никоновское.
    Дом со сторым светом, большим количесвом спален.
    Заведена вода, сделана канализация, электричество - 15 кВт, газ - по границе.
    Категория земель: Земли населенных пунктов
    Виды разрешенного использования: Для ведения личного подсобного хозяйства.
    Дом поставлен на кадастровый учет.
    Ипотека возможно по стандартной ставке ( не семейная), продажа от физлица!
    Торг возможен.
    Оперативный показ
    Эксперт по недвижимости Мысниченко Евгения
  • Пользователь Агентство
  • Имя Агенство недвижимости МЕТАнедвижимость
  • Телефон
    • +7 923 XXXXXXX
  • Обратная связь Отправить сообщение
  • Просмотров 13
  • Дата публикации
  • Дата обновления 20 Апрель 2026