Продаю помещение под склад видеонаблюдение

Новое
Добавить заметку
  • Пожаловаться
  • Номер 49350730
  • Сделка Продам
  • Объект Склад
  • Адрес
    • Московская область,
    • Подольск,
    • Коммунальная,
    • 44
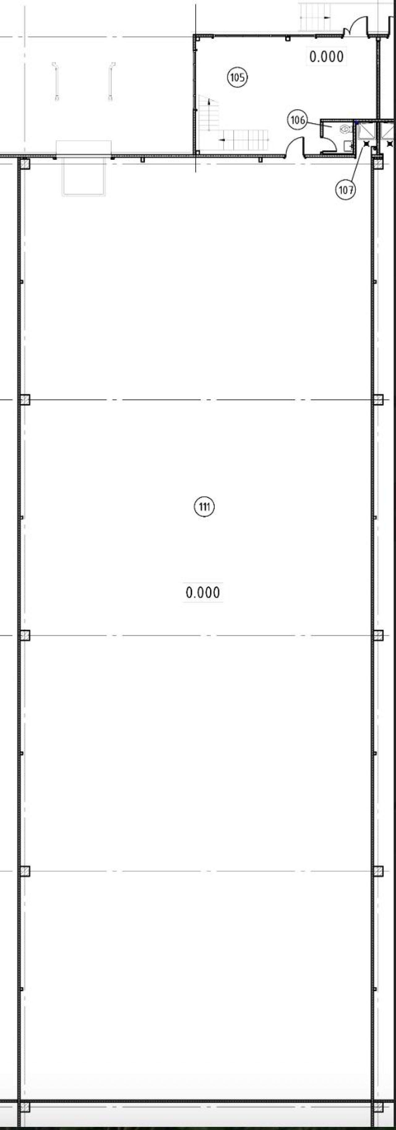
  • Этаж 1 / 2
  • Площадь объекта 969.13 м²
  • Телекоммуникации
  • Цена без комиссии
    • 129 878 926
    • 1 м² = 134 016
  • Продается новое готовое к заезду производственно-складское помещение вблизи МКАД в промышленном парке INDUSTRIAL CITY -ICPARK Коледино.
    Планировочное решение включает в себя пространство для производства, склад или логистику 859,2 кв.м, а также офисную часть 109,93 кв.м.
    Объект расположен в южном направлении с выездом на Симферопольское шоссе (М-2). Расстояние от МКАД — 24 км.
    Координаты: 55.373194, 37.575127
    Продажа осуществляется напрямую от собственника парка, что гарантирует отсутствие каких-либо комиссий и скрытых платежей!
    Формат Point. Блок D, Бокс 11.
    ОСНОВНЫЕ ХАРАКТЕРИСТИКИ:
    - Класс: A
    - Температура: Сухой склад
    - Автоматическая спринклерная система пожаротушения
    - Высота: 8 м
    - Нагрузка на пол: 5 т/кв.м
    - Высококачественные бетонные полы с антипылевым покрытием и упрочняющим слоем
    - Сетка колонн: 12x24
    - Ворота: на нулевой отметке
    КОММУНИКАЦИИ:
    - Электричество: 25 кВт (возможно увеличение мощности)
    - Вентиляция: приточно-вытяжная
    - Водоснабжение, канализация
    - Индивидуальные приборы учета
    ИНФРАСТРУКТУРА:
    - Парковки для транспорта: для грузовых авто — 1 место, для легкового авто — 3 места
    - Доступ к производственно-складским помещениям 24/7
    - Охраняемая территория
    - Видеонаблюдение
    - Скоростной интернет и телефония
    ДОПОЛНИТЕЛЬНО:
    - Собственная профессиональная управляющая компания
    - Клининг
    - Консьерж-сервис
    - Мобильное приложение
    - Маркетплейс услуг
    - Кафе на территории
    - Зоны отдыха и спортивные площадки
    Готовы предоставить подробную информацию и организовать просмотр!
  • Пользователь Собственник
  • Имя Отдел продаж
  • Телефон
    • +7 495 XXXXXXX
  • Обратная связь Отправить сообщение
  • Просмотров 6
  • Дата публикации
  • Дата обновления 29 Апрель 2026