Продается дом общей площадью 378.2 кв. м. без внутренней отделки – стоит на кадастровом учете. В доме 4 этажа: цокольный, 1й, 2й, мансардный. Дом полностью остеклен...
Продам дом Село Кривцы до Москвы 35 километров, до МКАД 30 километров. Сделан частичный ремонт, готов к проживанию. Все вопросы по телефону, показ в любое для вас время) на авито...
Продаётся в элитном месте 3-х этажный коттедж. Общая площадь 295м2, жилая отапливаемая площадь 185.6м2. Толщина стен 60см (блок,утеплитель, кирпич, утеплитель, декоративная...
продаю дом, общей площадью 300 квадратов, колодец, вольер для собаки, сарай с загоном для кур, уток и тд, рядом лес, пруд в шаговой доступности, остановка, магазин, свет есть...
Продаётся земельный участок 11 соток с домом 360м2 в СНТ Луч Находится в 5 км от РП Лотошино со всей инфраструктурой и магазинами. Подъезд к участку круглогодичный, зимой дороги...
Продаю дом на 8-ми сотках земли в коттеджном поселке в мкр. Южный, г. Ивантеевка, Пушкинского района Московской области. Участок ровный прямоугольной формы, большая его часть...
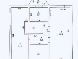
Жилой дом в деревне. Электричество, водопровод(скважина) бойлер, канализация, гараж, подвал в доме. 10 комнат, с/у на 1 этаже и ванная комната с с/у на 2 этаже. Отопление : печь +...
Продается !Дом площадью 338 м2.Адрес, Лосиный парк-2, Уч. 366. Площадь участка 10 соток. Дом: этажность - 2. Фундамент дома - монолитная плита из бетона В25(м350), наружные и...
Участок ЛПХ 10 сот, огорожено 15, возможно расширение до 30. Хозпостройки для животных и птицы, большие теплицы, вагончик для рабочих. Первая линия от реки. Прямой выход на берег...
Московская область, раменский район, с/п ганусовское, д. Малышево. Участок 10,5 соток, дом 344,7м2. Дом 2 этажа (кирпич +пеноблок), по периметру забор (сайдинг), ворота для въезда...









