Добавить заметку
  • Пожаловаться
  • Номер 49306770
  • Сделка Сдам
  • Объект Склад
  • Адрес
    • Московская область,
    • Москва,
    • Мытищинская 2-я,
    • 2 строение 14
  • Ближайшая станция метро
  • Район Алексеевский
  • Этаж 2 / 2
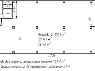
  • Площадь объекта 350.5 м²
  • Цена без комиссии
    • 297 925 /мес.
    • 1 м² = 850
  • Аренда от собственника. Индивидуальный подход к арендаторам. Сдается в аренду под склад или небольшое производство сухое помещение. 15 мин пешком от станции м. Рижская или м. Алексеевская, 5 мин от ж/д платформы Рижская (временно закрыта). Площадь 350.5 м2, 2-ой этаж. Грузовой лифт 500 кг. Пол бетон. Наименьшая высота потолка 2,7м (перекрытия), остальная 3,1 м. Здание находится на охраняемой территории. Двойной периметр охраны. Стоянка платная. Въезд на территорию для погрузки/разгрузки. Режим работы: будни 8:00 - 21:00.
  • Пользователь Собственник
  • Имя Анжела
  • Телефон
    • +7 933 XXXXXXX
  • Обратная связь Отправить сообщение
  • Просмотров 7
  • Дата публикации
  • Дата обновления 15 Ноябрь 2025