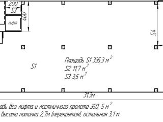
Аренда от собственника. Индивидуальный подход к арендаторам. Сдается в аренду под склад или небольшое производство сухое помещение. 15 мин пешком от станции м. Рижская или м...
Аренда от собственника. Индивидуальный подход к арендаторам. Сдается в аренду под склад или небольшое производство сухое помещение. 15 мин пешком от станции м. Рижская или м...








