Добавить заметку
  • Пожаловаться
  • Номер 49333042
  • Сделка Продам
  • Объект Производство
  • Адрес
    • Московская область,
    • Москва,
    • Зеленоград 5500-й проезд,
    • 4/3
  • Район Савёлки
  • Этаж 1 / 1
  • Площадь объекта 24300 м²
  • Телекоммуникации
  • Цена без комиссии
    • 3 037 925 000
    • 1 м² = 125 017
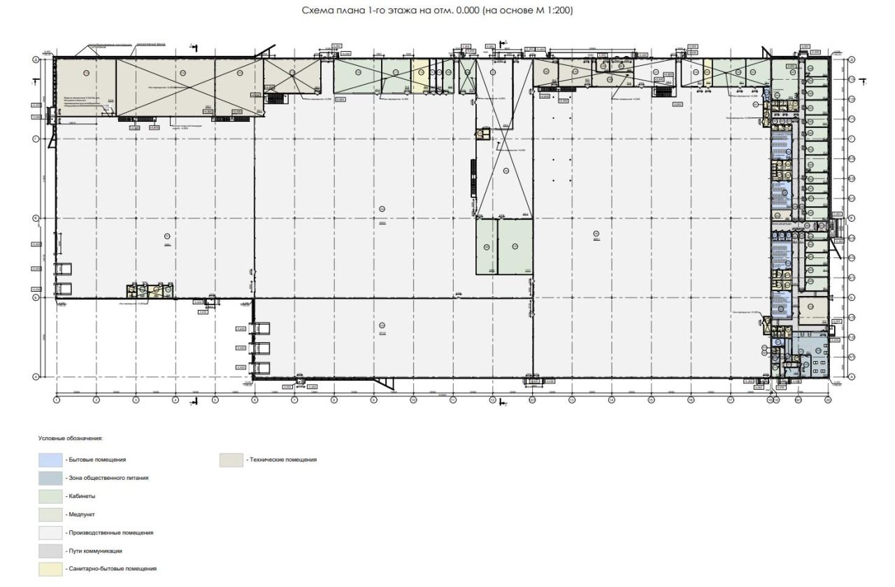
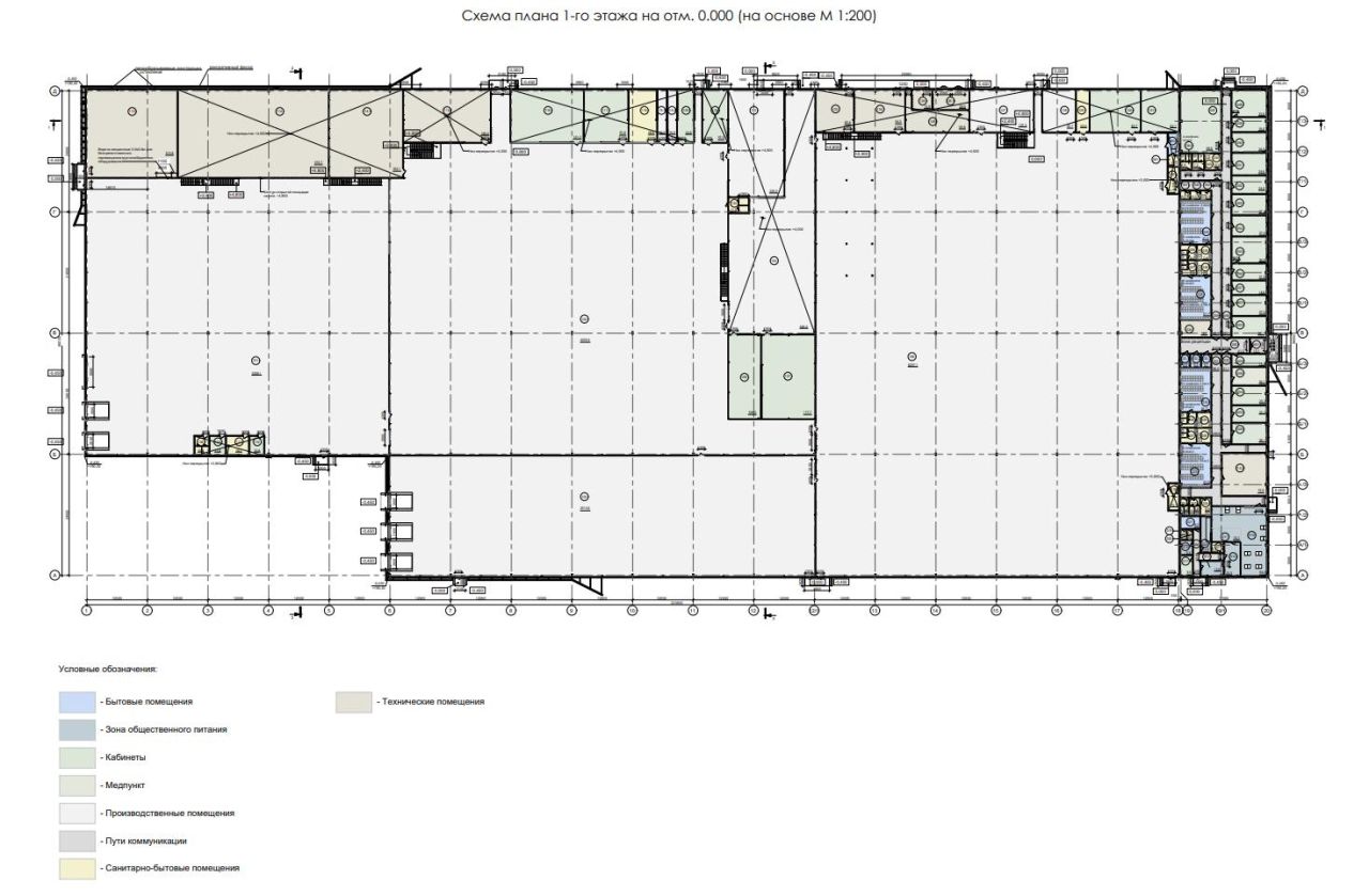
  • Объект представляет собой современное одноэтажное производственное здание Класса А, общей площадью 24,3 тыс. м2 с высокой инженерной оснащённостью и отличной логистикой, расположенное в сформировавшемся промышленно-складском кластере северного направления Москвы.
    Максимально быстрый переезд - готовность к запуску 1 квартал 2026 г.
    Расположение и логистика:
    г. Зеленоград (инфраструктура и доступ к квалифицированной рабочей силе)
    17 км от МКАД по Ленинградскому шоссе, недалеко от аэропорта Шереметьево
    удобный съезд на Фирсановское шоссе, 1,8 км от Ленинградского шоссе
    1,8 км до МЦД «Фирсановская»
    первая линия Фирсановского шоссе, удобный заезд на участок
    Основные характеристики:
    площадь земельного участка- 4,45 га
    эффективная площадь застройки- 48,5%
    широкий спектр кодов ВРИ: 6.2, 6.2.1, 6.3, 6.3.1, 6.4, 6.5, 6.6, 6.11
    паркинг 20 грузовых, 63 легковых м/м
    Конструктивные характеристики объекта:
    одноэтажное здание, высота потолков - 8 м
    эффективный шаг колонн 2412 м
    нагрузка на пол до 6 т/м2
    бетонный пол с антипылевым покрытием
    фасад- трехслойные сэндвич-панели
    Инженерная инфраструктура:
    электрическая мощность до 60 Вт/м2 с возможностью увеличения по запросу Клиента
    собственная газовая котельная
    теплоснабжение 1,5 Гкал/час
    водоснабжение 24,2 м/сутки
    класс энергоэффективности А
  • Пользователь Собственник
  • Имя Отдел продаж
  • Телефон
    • +7 495 XXXXXXX
  • Обратная связь Отправить сообщение
  • Просмотров 89
  • Дата публикации
  • Дата обновления 25 Май 2026