Аренда от собственника. Помещение свободного назначения (ресторан, выставочный зал, офис, торговые площади, медицинский центр). Сдается в аренду помещение площадью 335 кв. м...
Долгосрочная аренда от собственника офис-квартиры в 4-х этажном кирпичном доме расположенной на 2-м этаже. От м.Парк Культуры 5 мин.пешком. Представительский офис с мебелью:...
ОТ СОБСТВЕННИКА! В деловом комплексе Парк Легенд сдается помещение от собственника. В+. (Бизнес центр) В шаговой доступности м. Автозаводская, МЦК- ЗИЛ. (ЗИЛАРТ). Помещение...
Сдам шикарный стильный ЛОФТ офис! 9 этаж! Итальянский керамогранит на полу.Перегородки-каленое толстое звуконепроницаемое стекло. Панорамное остекление и шикарный вид.Открытые...
Аренда помещение 3504 Вашему вниманию предлагается просторное помещение общей площадью общей площадью 123.4 м2 без отделки, в помещении сделана антресоль из металла + лестница...
Офисное помещение в шаговой доступности от метро Цветной бульвар. В помещении производится качественный ремонт. Интенсивная проходимость. По всем вопросам обращайтесь по...
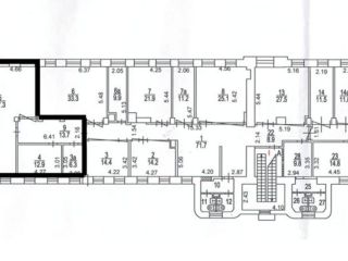
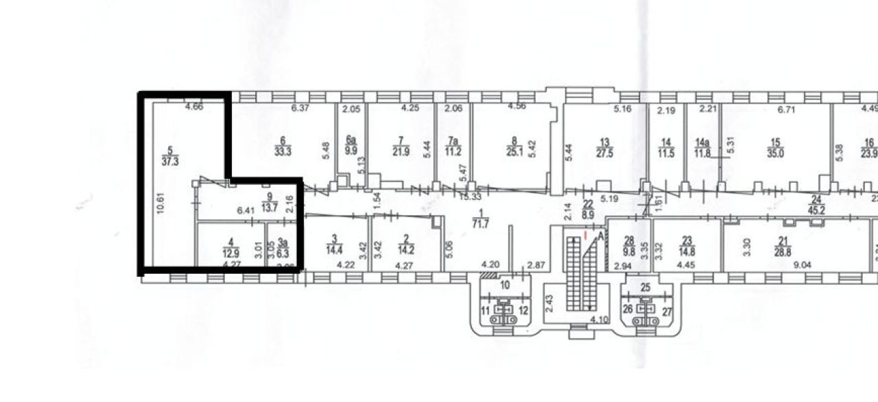
Сдается помещение свободного назначения, общей площадью 127,6 кв.м., антресоль 1 этажа с отдельным входом со двора, окна на Благовещенский переулок и во двор. Планировка...





























