Продается помещение свободного назначения

Новое
Добавить заметку
  • Пожаловаться
  • Номер 49302743
  • Сделка Продам
  • Объект Нежилое помещение
  • Адрес
    • Московская область,
    • Москва,
    • Поречная,
    • 10
  • Ближайшая станция метро
  • Район Марьино
  • Этаж 1 / 5
  • Площадь объекта 88547 м²
  • Цена без комиссии
  • ПРОДАЖА ТОРГОВО-РАЗВЛЕКАТЕЛЬНОГО ЦЕНТРА MARI, площадь 88 547 м2, стоимость 6 600 000 000 руб. без НДС (форма сделки - продажа долей Общества) /стоимость 8 000 000 000 руб,, включая НДС (форма сделки - продажа недвижимости по ДКП)
    г. Москва, ул. Поречная, 10,
    «метро Марьино»
    «метро Братиславская»
    MARi - это современный торговый центр для всей семьи, где посетители любого возраста могут найти товары и развлечения на свой вкус.
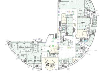
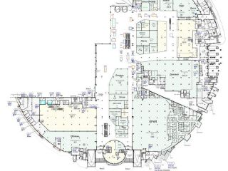
    Количество этажей: 6 (1 подземный)
    Площадь нежилых помещений 88 547 м2
    ТРК расположен в густонаселенном районе Москвы - Марьино.
    В зону охвата ТРК входят районы - Марьино, Люблино, Братеево:
    5 мин - 141 600 человек
    10 мин - 307 800 человек
    20 мин - 826 450 человек
    Всего - 1 275 850 человек
    Проект преимущественно окружен жилой застройкой. Дополнительный генератором траффика является обновленный парк 850-летия Москвы. ТРК расположен рядом с транспортной развязкой основных магистралей районов Марьино и Братеево. Заполненность торгового центра - 90%
    Состав имущественного комплекса:
    Нежилые помещения 88 547,00
    Земельный участок (часть) 44 887,00 (аренда)
    Количество машиномест: 941
    Посещаемость ТРК MARi ежегодно растет в среднем на 10% последние 4 года.
    Панорамные окна с видом на Москва-реку из фитнес-клуба и ресторанов. Архитектура здания дает возможность использовать пространство на крыше под рестораны и ритейл
    В ТРК расположен самый современный и востребованный восьми зальный кинотеатр в районе, а так же находится масштабная развлекательная зона.
    Якорные Арендаторы:
    Eurospar, Спортмастер, Лэтуаль, М-видео, Joki Joya, Детский мир и др.
  • Пользователь Собственник
  • Имя Отдел продаж
  • Телефон
    • +7 495 XXXXXXX
  • Обратная связь Отправить сообщение
  • Просмотров 7
  • Дата публикации
  • Дата обновления 5 Ноябрь 2025