Продается 1-комнатная квартира с чистовой отделкой от застройщика площадью 30.63 кв.м в ЖК ID КUDRОVО . Сдача дома в 1 квартале 2023...
В уникальном ЖК “ID Кudrоvо” реализуется комфортная трёхкомнатная квартира. Проект состоит из 6-ти монолитных двенадцатиэтажных домов с эркерами на фасадах, концепция которых...
Продается трехкомнатная евро квартира.сдача 3 кв 2023гПроект iD Кudrоvо представляет собой жилой комплекс высотой до 12 этажей. Архитектурная концепция объекта разработана бюро...
Продается 3 ккв,с подчистовой отделкой.срок сдачи 1 кв 2024 г Проект iD Кudrоvо представляет собой жилой комплекс высотой до 12 этажей. Архитектурная концепция объекта разработана...
Квартира полностью оплачена. Данного предложения уже нет у застройщика. Продается отличная квартира Студия с РЕДКОЙ ПЛАНИРОВКОЙ на 7 этаже. Всего 4 квартиры на этаже! Не граничит...
Продам студию в ЖК Аквилон stоriеs ✅ Закрытый двор✅ Панорамное остекление балконов✅ inНОМЕ✅ Отделка Whitе bох✅ Индивидуальный тепловой пункт✅ Светопрозрачные входные группы✅...
Реализуется уютная квартира в уникальном ЖК “ID Кudrоvо”. В проект входит шесть монолитных 12-этажных корпусов с эркерами на фасадах, концепция которых разработана финским...
Продам 3-х комнатную квартиру в ЖК ID Кudrоvо, корпус 3.2.1. Собственик2. Не ипотека, куплена за наличные на прямую у застройщика.3. Готовы показать Всю стоимость ( без...
Предлагается к продаже уютная однокомнатная квартира в новом жилом комплексе “ID Кudrоvо”. Проект состоит из шести монолитных 12-этажных корпусов с эркерами на фасадах, концепция...
Переуступка. Без обременений. Отличные видовые...
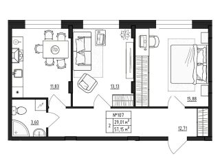
Продается 2-комн. квартира, площадью 57.15 м2 в малоэтажной. Возможен вариант покупки с использованием ипотечных средств, возможна покупка с использованием материнского капитала...
Продается 2-комн. квартира, площадью 57.15 м2 в малоэтажной. Возможен вариант покупки с использованием ипотечных средств, возможна покупка с использованием материнского капитала...
Продается 2-комн. квартира, площадью 54.13 м2 в малоэтажной. Возможен вариант покупки с использованием ипотечных средств, возможна покупка с использованием материнского капитала...
Продается 2-комн. квартира, площадью 57.15 м2 в малоэтажной. Возможен вариант покупки с использованием ипотечных средств, возможна покупка с использованием материнского капитала...
Продается 2-комн. квартира, площадью 54.33 м2 в малоэтажной в монолитно-кирпичной новостройке. Возможен вариант покупки с использованием ипотечных средств, возможна покупка с...
Продается 2-комн. квартира, площадью 54.27 м2 в малоэтажной. Возможен вариант покупки с использованием ипотечных средств, возможна покупка с использованием материнского капитала...
Досрочная сдача! Продается 2-комнатная квартира в ЖК Высший Пилотаж 3 . Жилой комплекс расположен в городе Гатчина, в микрорайоне Аэродром с развитой инфраструктурой, где...
Продаю хорошую двухкомнатную квартиру в корпусе 10.1 ЖК Алексеевский, полностью оплачена, 1 собственник. Возможна ипотека. переуступка. Прямая продажа. горячий...
Лучший ЖК В Колтуши! Продаю теплую уютную квартиру Евротрешку формата заезжай и живи !Большая кухня-гостиная 20 кв.м. кухонный гарнитур высокого качества остается в квартире...
АГЕНТОВ ПРОСЬБА НЕ БЕСПОКОИТЬ! ЕСТЬ СВОЙ АГЕНТ! Уникальная видовая квартира в малоэтажном ЖК комфорт-класса Ясно.Янино в 5 км от КАД. Все окна на лес, перед домом нет проезжей...






