Сдаю склад имеется охрана видеонаблюдение

Новое
Добавить заметку
  • Пожаловаться
  • Номер 49349830
  • Сделка Сдам
  • Объект Склад
  • Адрес
    • Красноярский край,
    • Красноярск,
    • Северное шоссе,
    • влд17к
  • Район Центральный
  • Этаж 1 / 3
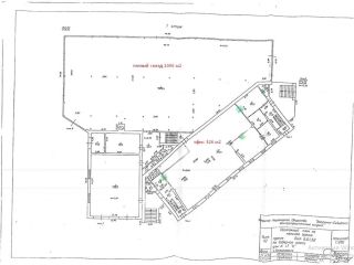
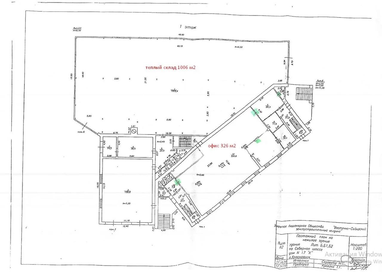
  • Площадь объекта 1006 м²
  • Телекоммуникации Выделенные линии интернет
  • Цена без комиссии
    • 600 000 /мес.
    • 1 м² = 596
  • Сдается в аренду качественное складское помещение общей площадью 1006 м2 от собственника здания. Идеальное расположение на первой линии Северного шоссе обеспечивает высокую транспортную доступность и отличную видимость для вашего бизнеса.
    Преимущества объекта:
    Теплый и подготовленный склад:
    Наличие отопления и вентиляции для комфортного хранения грузов.
    Высота потолков 6,5 метров — эффективное использование стеллажей.
    Естественное и искусственное освещение по всей площади.
    Холодное водоснабжение.
    Выгодные условия аренды:
    Арендатор оплачивает только электроэнергию. Все остальные эксплуатационные расходы (отопление, вода, охрана, уборка территории) берем на себя.
    Электроснабжение: есть возможность увеличения мощности под ваши нужды.
    Логистика и безопасность:
    Удобный въезд с двух сторон, просторная асфальтированная территория для маневрирования большегрузного транспорта.
    Круглосуточное видеонаблюдение по всему периметру.
    Наличие сигнализации в помещении.
    Соседство:
    В этом же здании уже успешно работают крупные строительные, торгующие и транспортные компании — проверенное место для складской и логистической деятельности.
    Звоните, чтобы организовать просмотр в удобное для вас время!
  • Пользователь Собственник
  • Имя Арег
  • Телефон
    • +7 962 XXXXXXX
  • Обратная связь Отправить сообщение
  • Просмотров 21
  • Дата публикации
  • Дата обновления 24 Апрель 2026