Дом в центре Лоо.Участок ровный.Центализованное отопление, водоснабжение (горячая и холодная вода), водоотведение, электричество, интернет (оптика). В перспективе подключение...
Продаю жилой гараж, в центре города, со всеми удобствами и коммуникациями. Школа, дет сад, магазины-все в пешей доступности. До мопя пешком 5 мин. Рядом автобусная остановка. Вся...
Дом каркасный, теплый, плесени нет! Тихое место, соседи супер! Выход в лес! Есть возможность сделать 2 этажа. Вода- колодец, газ по периметру, эл. 3 фазы, разрешение на...
Продается жилой дом: село Нижняя Шиловка, в 10 км от Олимпийской деревни ,с видом на море, рядом лес. Свет, газовая могистраль возле дома. Участок 6.059 соток...
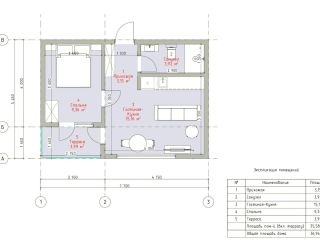
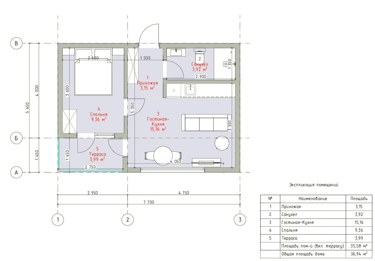
Продаю небольшой дом в с. Бестужевское, снт Луч., в Адлерском районе г. Сочи. Общая площадь 34 кВ.м. на участке 5 сот. В доме есть всё нужное для проживания: санузел, кухня...
Собственник, звоните, покажу в любое время. Материал стен ОСП. Вода, канализация, электричество все в доме, тёплый...











