Продаю 2к квартиру в новом доме. Монолитный дом, квартира с ремонтом от застройщика, никто не жил. Мебели нет. Ипотеку...
Продаю большую двушку с ремонтом и мебель ю, всё остальное по телефону, читать...
Продам 3х-комнатную квартиру в теплом кирпичном доме, полностью с мебелью и техникой ,которую оставлю при необходимости. Квартира состоит из светлой и просторной гостиной с...
хорошая квартира 3 комнаты .Имеется отдельны вход на оживленную улицу. при продаже в квартире остаеться вся мебель расположение комнат позволяет выделить помещения и...
Продается 3 к кв в кирпичном многоквартирном доме .Дом одноэтажный следовательно сверху никто не будет шуметь .Хорошее расположения не далеко от центральной улицы города...
Цокольный этаж в кирпичном доме, во всем доме цокольный этаж жилой. В квартире сделан частичный ремонт, поменяны все двери включая входную, на полу стяжка и ламинат, стены...
Продается 3-комн. квартира в центре Краснодара (Аврора – вокзал Краснодар II). Не угловая, теплая. Одно окно выходит на восток (ул. Коммунаров и ж/д), три – на запад (во двор)...
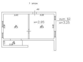
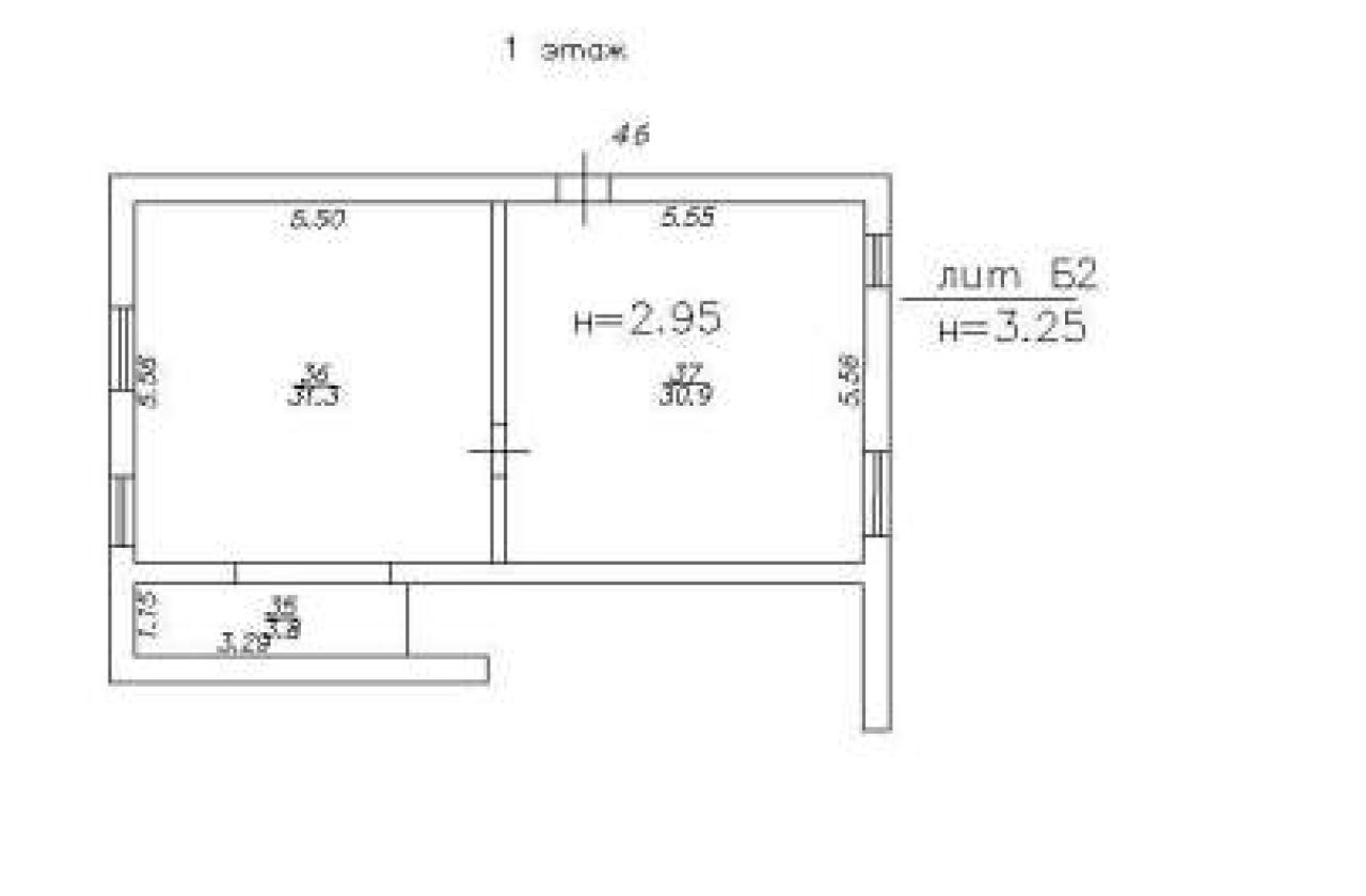
Квартира в двух уровнях,между фмр и к.т аврора .Приватизированная квартира и зем участок.Вход отдельные ,имеется небольшой двор...
Вашему вниманию представлена шикарная 2-х комнатная квартира с хорошей площадью. санузел раздельный, дом из кирпича, в подъезде хороший ремонт, спокойные соседи, спокойный двор...
Продам светлую и уютную двухкомнатную квартиру с хорошим ремонтом. Квартира расположена на 5-м этаже 6-ти этажного кирпичного дома. Всего на этаже 5 квартир. Рядом хорошие соседи...






