Добавить заметку
  • Пожаловаться
  • Номер 49350041
  • Сделка Продам
  • Объект Дом
  • Адрес
    • Ленинградская область,
    • Выборг,
    • Поселок Ленинское Мира,
    • 10
  • Тип дома Кирпичный
  • Этаж - / 3
  • Площадь земельного участка 30.2 сот
  • Площадь объекта 500.2 м²
  • Цена без комиссии
  • Продается через электронные торги на площадке ЭТП ГПБ Индивидуальный жило дом площадью 500,2 кв.м,, расположенный по адресу:
    ЛО, Выборгский район, МО " Первомайское сельское поселение",, пос. Ленинское, улица Мира, д.10
    Год построки: 2019
    Кадастровый номер: 47:01:1704003:396
    Дом распложен на земельном участке площадью 3022 +/- 38 кв.м.
    Категория земель: Земли населенных пунктов
    Виды разрешенного использования: под строительство малоэтажной коттеджной застройки.
    Кадастровый номер: 47:01:1704003:80
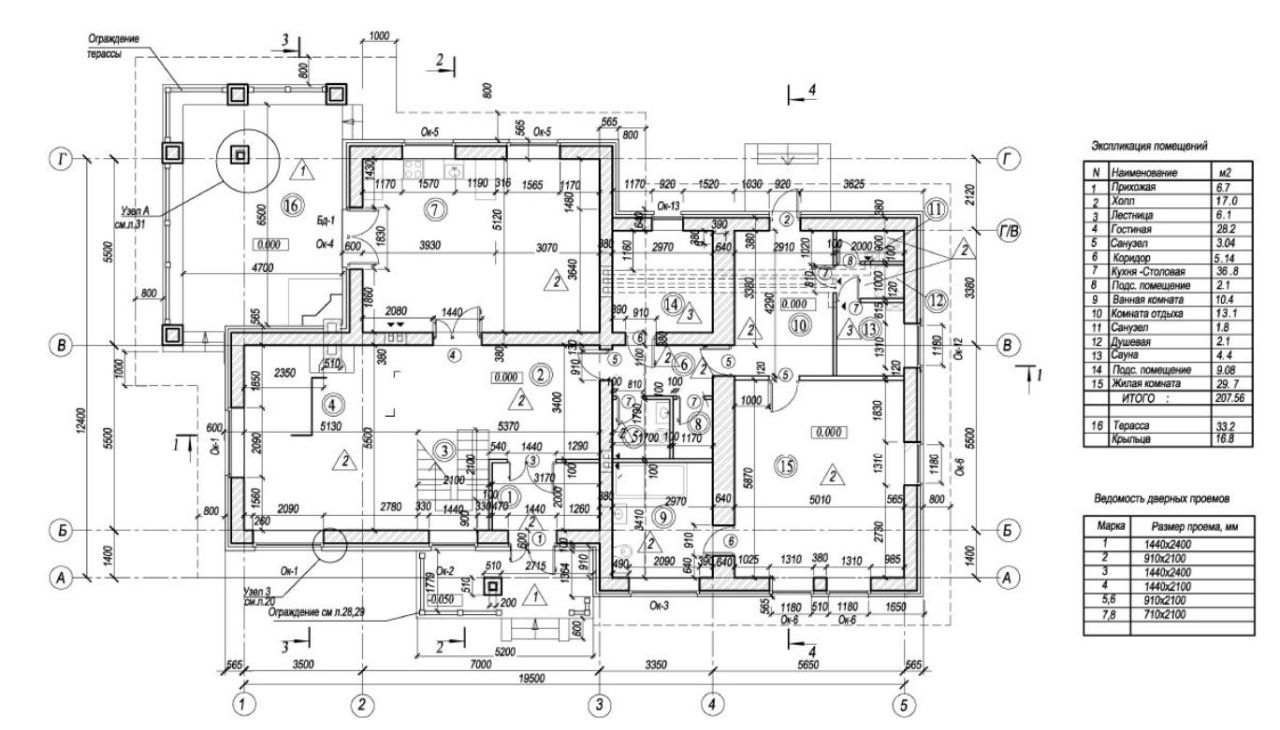
    Характеристики и описание объекта
    Жилой дом:
    Цоколь здания облицован путиловским камнем; Горизонтальная гидроизоляция стен - цементно-песчаный раствор 1:2, толщиной 35 мм с водостойкими добавками из жидкого стекла;
    Наружные стены 3-х слойные - кирпич пустотелый строительный, минераловатные плиты - 75 мм, воздушная прослойка 25 мм, лицевой кирпич пустотелый;
    Внутренние перегородки - гипсобетонные, пазогребные, толщиной 100 мм;
    Кровля - мягкая черепица по деревянной обрешётке;
    Этажность: 2, мансарда
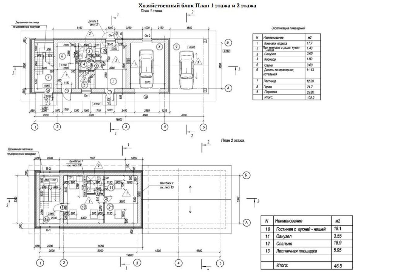
    Хозяйственны блок:
    Цоколь здания облицован искусственным камнем;
    Горизонтальная гидроизоляция стен - цементно-песчаный раствор 1:2, толщиной 35 мм с водостойкими добавками из жидкого стекла;
    Наружные стены 3-х слойные - кирпич пустотелый строительный, минераловатные плиты - 80 мм, воздушная прослойка 20 мм, лицевой кирпич пустотелый;
    Внутренние перегородки - гипсобетонные, пазогребные, толщиной 100 мм;
    Кровля - гонтовые плитки;
    Этажность: 2
  • Пользователь Агентство
  • Имя Турманова Елена Леонидовна
  • Телефон
    • +7 812 XXXXXXX
  • Обратная связь Отправить сообщение
  • Просмотров 11
  • Дата публикации
  • Дата обновления 29 Апрель 2026